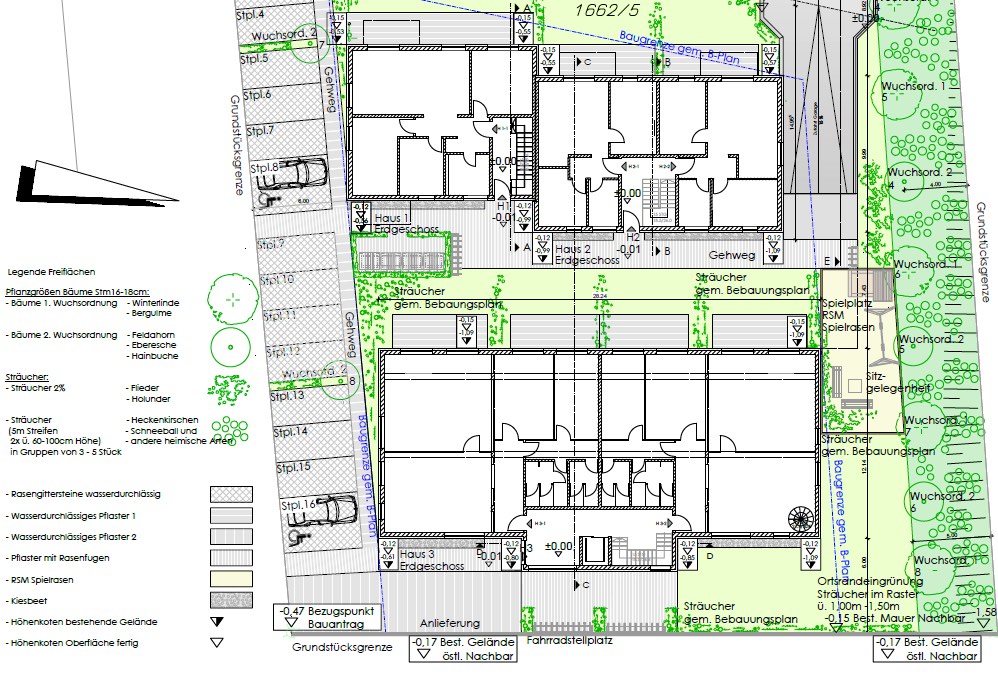
PappelstraßeMoorenweis
Nutzung/Gebäudetyp:
Neubau von Gewerberäumen, Wohnungen und einer Tiefgarage
Auftraggeber:
privat
Leistungsphasen:
1-8
Leistungszeitraum:
Bausumme:
ca. 2,5 Mio. € brutto
Baubeschreibung:
Wohnanlage in 3 Bauabschnitten mit Tiefgarage, die komplette Wohnanlage wird durch privaten Investor vermietet.


