Neue StraßeAugsburg-Haunstetten
Nutzung/Gebäudetyp:
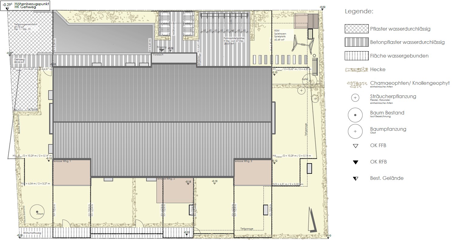
Neubau von 8 Wohnungen
Auftraggeber:
Project Consult KS GmbH
Leistungsphasen:
1-8
Leistungszeitraum:
Bausumme:
ca. 1.9 Mio. € brutto
Baubeschreibung:
8-Familienwohnhaus mit Tiefgarage, insgesamt ca. 790m² Wohnfläche, gehobene Ausstattung.


