LindenauRederzhausen
Nutzung/Gebäudetyp:
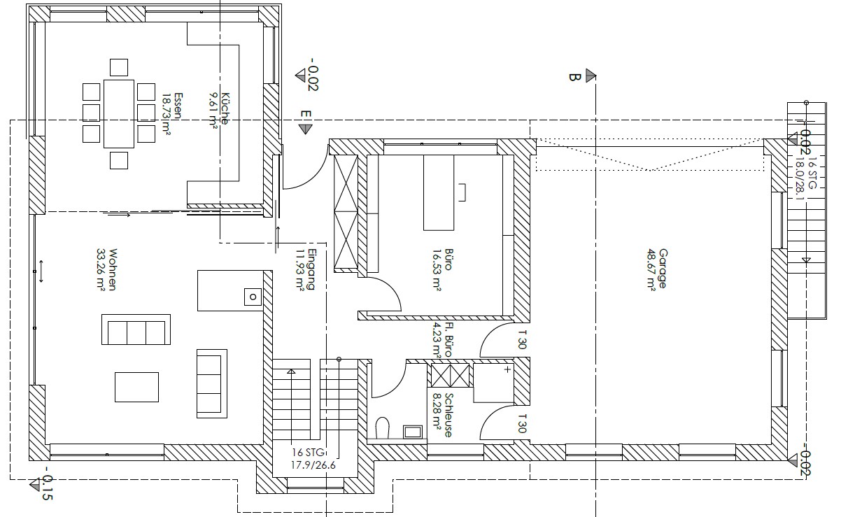
Neubau eines Einfamilienhauses mit Bürotrakt und Doppelgarage
Auftraggeber:
privat
Leistungsphasen:
1-4
Leistungszeitraum:
Bausumme:
ca. 400.000 € brutto
Baubeschreibung:
Auf der Hofstelle südlich von St. Afra wurden für den Leiter des landwirtschaftlichen Betriebes ein Einfamilienhaus geplant. Bauweise in Massivbauweise, Holzfenster, Fußbodenheizung, gehobene Ausstattung, Satteldach, Holztreppe. Das Objekt ist nicht unterkellert.


